Gainsville032125_122.jpg
Limestone Marketplace
Project
Information
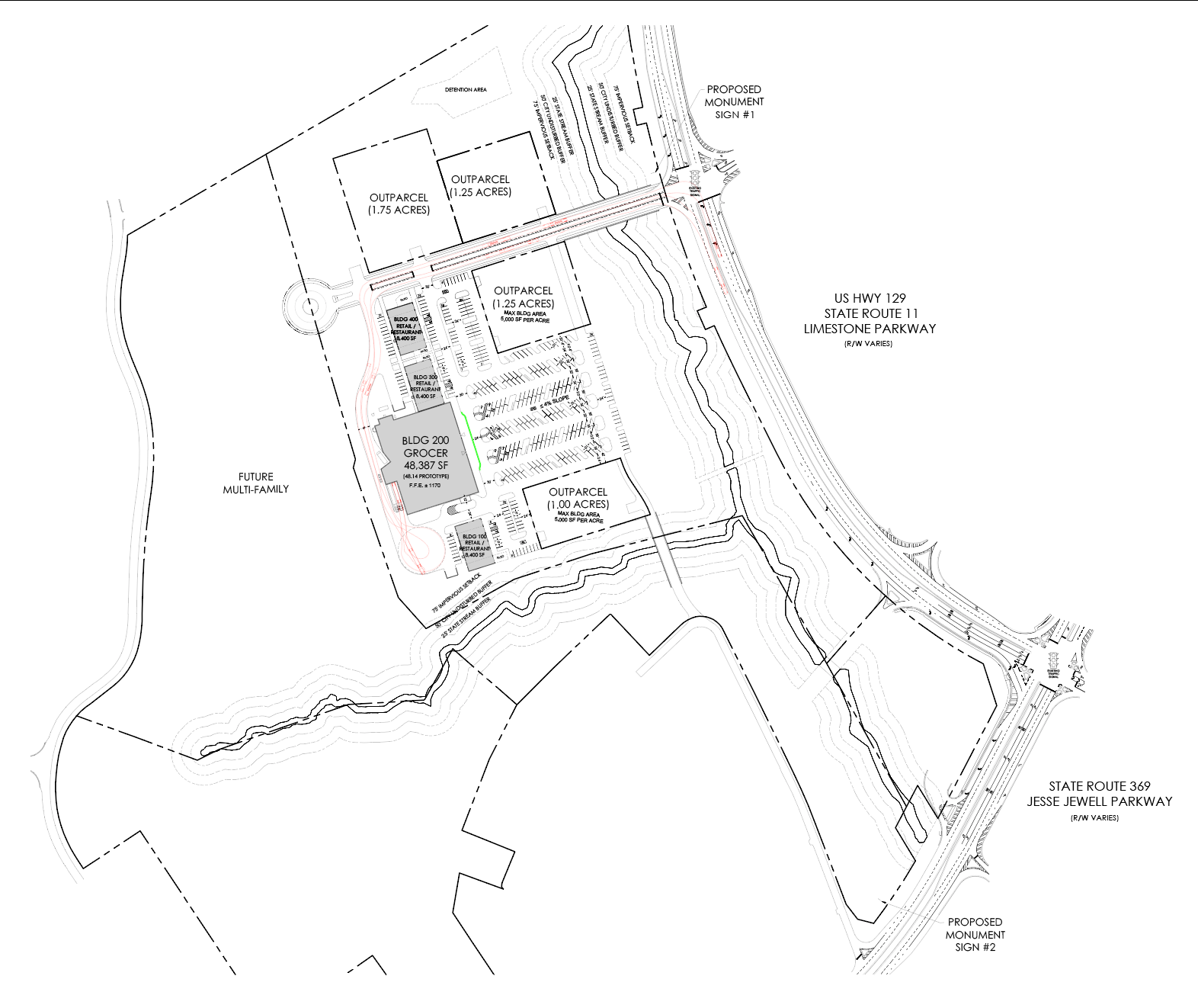
Limestone Marketplace is a Publix-anchored Shopping Center in Gainesville, Georgia. Retail spaces are available for lease in the new grocery-anchored development, which is currently under construction. Suites 200-250, 300-350, and 400-430 are also available with units ranging from 1,200 – 1,400 sf. in size. One outparcel remains available. The shopping center has amazing visibility and is located at the signalized intersection of Limestone Parkway (US Hwy 129/S.R. 11) and New Holland Way. With traffic counts on Limestone Parkway (US Hwy 129/S.R. 11) at 18,000 ADT and 31,000 ADT on the adjacent Jesse Jewell Parkway, as of 2021, the shopping center will be accessed by a large volume of consumers from some of Gainesville's most traveled thoroughfares.
Location
Gainesville, GA
Demographics
Population
2024 ESTIMATED
31,497
2029 PROJECTED
33,611
Households
2024 ESTIMATED
11,418
2029 PROJECTED
12,310
Avg. HHI
2024 ESTIMATED
$89,850
2029 PROJECTED
$87,158
Contact
Richard Wiles
404-832-8924

rwiles@branchprop.com